Eladó telek Borhanciban
A Reform Ügynökség eladásra kínál egy 600 nm-es telket a Borhanci negyedben, az Olimpiai Uszoda területén.
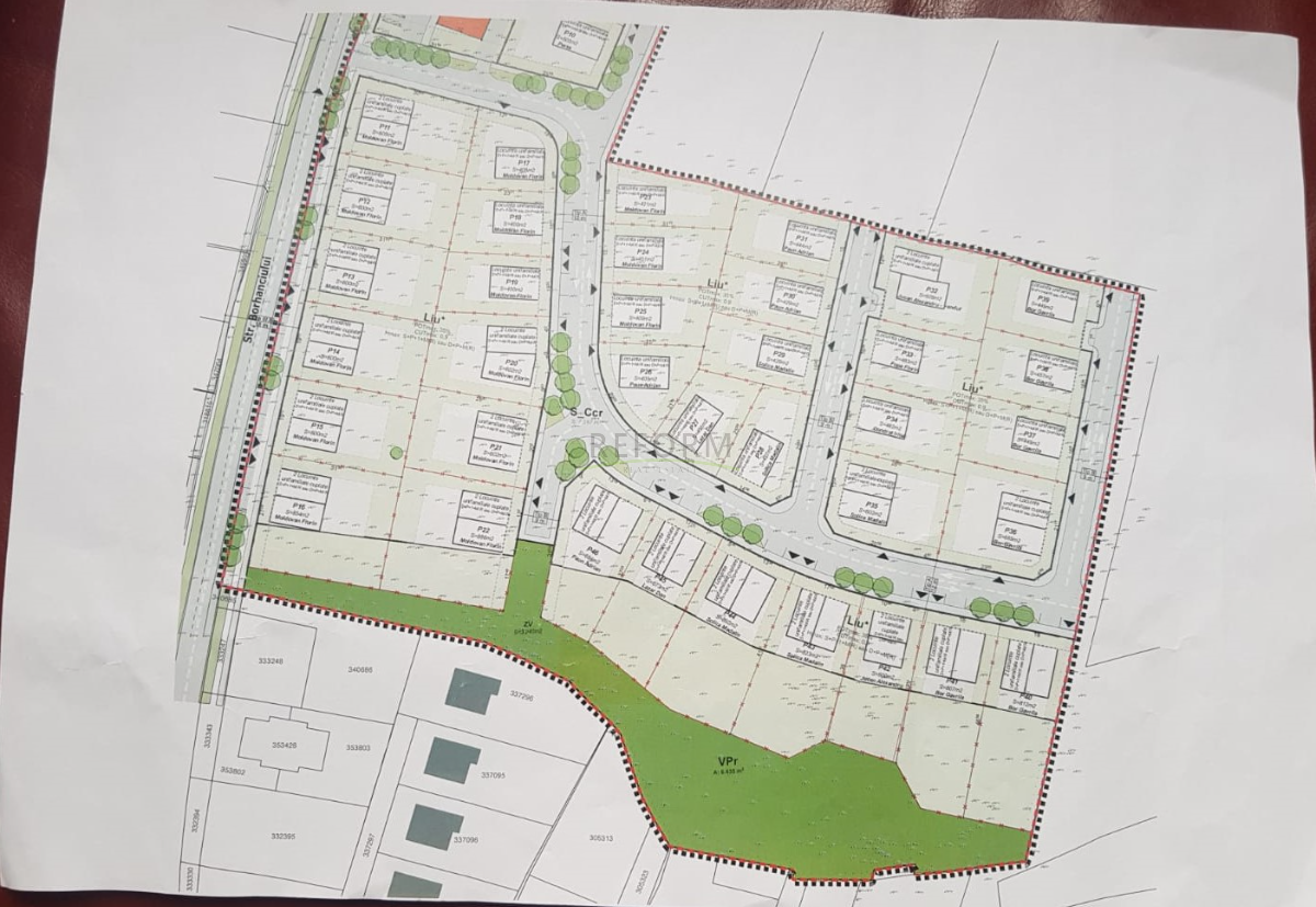
A telek szerepel a Liu városrendezési tervben, maximális beépítési szazalék (POT) 35%-os és telek kihasználási együtthatoja (CUT) 0,9%-os
Építhető rá egy 9,30 m széles és 13 m hosszú, 275 nm-es ház, vagy 2 lakóegység Alaksor+E+1E+M vagy A+F+M (vissza huzodott emelet).
Fejlődő terület Olimpiai Uszodával, óvodával, fiatal kolektiv és új házakkal.
Városrendezési tanúsítvánnyal és lehetőségtanulmánnyal rendelkezik.
Ár: 120 000 euró
Amennyiben további résztleteket kíván megtudni az ingatlanról, kérjük írjon nekünk az reform.reform@yahoo.com e-mail címre, illetve rendelkezésére állunk a következő telefonszámon: +40 773 903 244
A fenti ajánlat tájékoztató jellegű, megtörténhet, hogy az ingatlant időközben értékesítették, vagy megváltozott az árértéke. Cégünk nem vállal felelősséget a hirdetés tartalmáért és időszerűségéért.
