Eladó 2 szobás lakás a Györgyfalvi negyedben
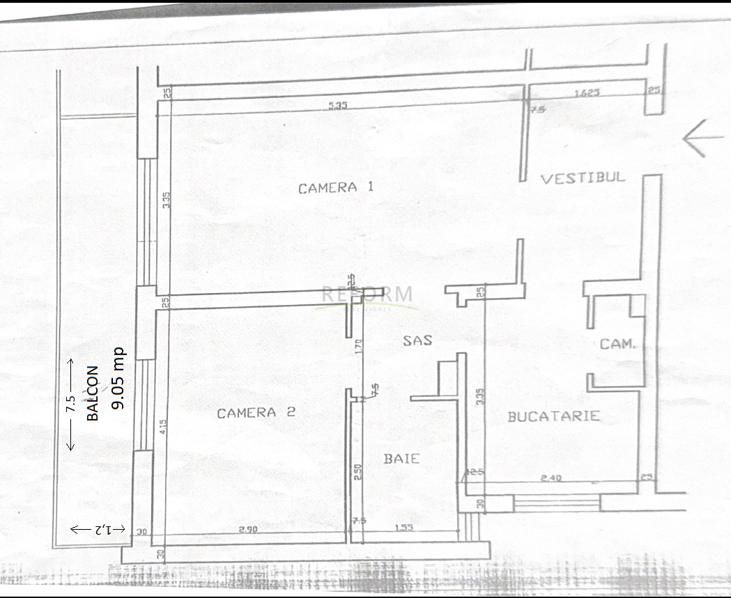
Eladásra kínálunk egy 2 szobás, különbejáratú (körbejárható) lakást, 53 nm hasznos alapterülettel, a Györgyfalvi negyed egyik csendes, zöldövezeti részén.
A lakás egy 4 szintes, hőszigetelt tömbház 2. emeletén található.
Beosztás:
• Előszoba gardróbbal
• Nappali világos és tágas térrel
• Hálószoba
• Konyha külön kamrával
• Kis előszoba és fürdőszoba
• 9 nm-es erkély, amely a két szoba teljes hosszán végigfut — ideális pihenésre vagy zöld sarok kialakítására
Jellemzők:
• Klasszikus kivitelezés
• Tömörfa padló
• A lakás felújítást igényel, így saját ízlés szerint alakítható
• Hőszigetelt épület, rendezett lépcsőház
Elhelyezkedés:
A lakás kiváló helyen található, közel minden fontos létesítményhez:
Iulius Mall, Mercur piac, Detunata park, Györgyfalvi Sportbázis, iskolák, óvodák, egyetemek és tömegközlekedési megálló mindössze 2 perc sétára.
Előnyök:
• Kiváló lokáció, csendes és biztonságos környék
• Ideális saját otthonnak vagy befektetésnek
• Tágas, jól szeparált helyiségek
• Napfényes, nagy erkély, kellemes kilátással
Ár: 149.000 €
Amennyiben további résztleteket kíván megtudni az ingatlanról, kérjük írjon nekünk az reform.reform@yahoo.com e-mail címre, illetve rendelkezésére állunk a következő telefonszámon: +40 773 903 244
A fenti ajánlat tájékoztató jellegű, megtörténhet, hogy az ingatlant időközben értékesítették, vagy megváltozott az árértéke. Cégünk nem vállal felelősséget a hirdetés tartalmáért és időszerűségéért.
